Marina Condominium, San Francisco
3 BED · 2 BATH · 2500 SQFT REMODEL
A spacious two level condominium located in the heart of San Francisco’s Marina District with gorgeous rooftop views of the Palace of Fine Arts and the Golden Gate Bridge.. This project was in a classic Marina building and featured three bedrooms, two full baths, including a master suite and a private roof deck. The new owners were looking to update their new home by remodeling both baths and completely replacing the kitchen. By reworking part of the floor plan we were able to increase the living space and add a washer/dryer to the interior of the unit. The entire home was painted (interiorl and exterior), and the roof deck was replaced to add privacy while preserving the world class view.
Pied-à-terre, Cow Hollow, San Francisco
1 BED + OFFICE · 1 BATH · 1000 SQFT REMODEL
A bachelor's first pad turned family pied-à-terre, this 100+ year old gem was completely resurfaced inside and out. In order to begin the transformation, the bulk of the work began at the City converting the building from a Tenancy-in-Common to separate individual condominiums. This 100+ year old building required structural support due to settling, new stairs, plumbing and electrical to meet Building Code. 4000 lbs of brick were removed making room for addition closets as well as a washer/dryer in the unit. The kitchen and bathroom were completely overhauled, and new hardwood floors were added in the common areas and new carpet in the bedroom. Finally, the unit was completely painted inside as well as the entire exterior to cap off the transformation.
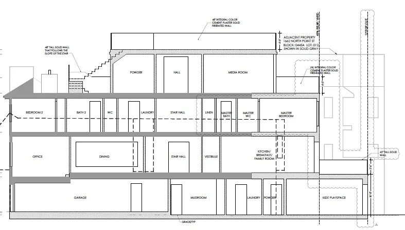
Family Estate, The Marina, San Francisco
5 bed · 3 bath · 6000 sqft, Remodel
Originally built in 1932, no permits had been pulled to improve this building since 1955. The team spent two years working to obtain the entitlements and permits to double the size of the building from 2945 sqft to 6000 sqft to create a spectacular Family Estate 1 block from the Marina. Grey Barn Management hosted all meetings, drove the design discussions, and managed the community outreach required by the city in the permitting process. Once permits were obtained, the value of the building had increased so significantly that the building and the rights to the permits were sold prior to breaking ground.
Before...
After...
